Eladó Családi ház, Nyírtelek

#687701360

Eladó Családi ház

73 millió Ft

Nyírtelek Bedőbokor
Alapterület:
130 m2
Szobák száma:
4
Állapot:
Felújított
Építési mód:
Tégla

Kérjen személyes bemutatást!
Adja meg adatait, és hogy mikor érne rá!

Az Adatkezelési tájékoztatót elolvastam és elfogadom.

Megfelelő időpontok

Hétköznap délelőtt
Hétköznap délután
Hétköznap este
Hétvégén délelőtt
Hétvégén délután
Hétvégén este
Kérés elküldése
3 000 m2
Kondenzációs kazán
2
Dupla komfort
Bevezetve (230 Volt)
Van, saját vízórával
Vezetékes gáz
Közműhálózatba bekötve

Tágas otthon, nyugodt élet!

Tágas otthon, nyugodt élet!

Nyírtelken 4 szobás, felújított családi ház eladó!

Ez a tágas, 130 m²-es tetőtér-beépítéses otthon ideális választás családok számára: az alsó szinten tágas nappali, szülői háló, a tetőtérben pedig két világos, kényelmes szoba található. A kétszintes kialakítás praktikus és hangulatos egyszerre. A kétállásos garázs biztosítja a járművek kényelmes és biztonságos elhelyezését.

 

A telek 3000 m², melynek felén egy gondosan karbantartott pihenőkertet alakítottak ki: romantikus filagória, árnyas fák, színes bokrok — ideális hely a kikapcsolódásra, családi összejövetelekre, reggeli kávézásra a természet közepén.

 

A ház nemcsak tágas és zöldövezeti, de korszerű is: 2023-ban felújították a tetőt, a fűtésrendszert, a konyhát és a fürdőt, valamint a belső tereket is, szigetelték a homlokzatot.

 

Ez a hely tökéletes azoknak, akik egy csendes, családbarát környezetre vágynak, ugyanakkor értékelik a kényelmet és a stílusos, jól karbantartott háza

 

Ne hagyja ki ezt a lehetőséget! Kérjen bemutatót még ma, és élje át személyesen az otthon melegét és a kert nyugalmát.

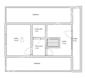
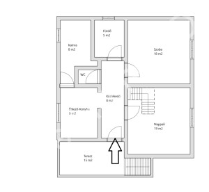
Helyiség Méret (m2)
Nappali 19
Szoba 18
Közlekedő 8
Konyha + étkező 9
Kamra, Éléskamra, Spájz 8
Fürdőszoba 5
WC 1
Szoba 12
Szoba 14
Közlekedő 4
Fürdőszoba + WC 3
Terasz 15

Kérdése van?
Adja meg adatait és felhívjuk!

Az Adatkezelési tájékoztatót elolvastam és elfogadom.
Üzenet küldése