Eladó Téglalakás, Nyíregyháza

#687701276

Eladó Téglalakás

52.9 millió Ft

Nyíregyháza Jósaváros
Alapterület:
59 m2
Szobák száma:
4
Állapot:
Építési mód:
Tégla

Kérjen személyes bemutatást!
Adja meg adatait, és hogy mikor érne rá!

Az Adatkezelési tájékoztatót elolvastam és elfogadom.

Megfelelő időpontok

Hétköznap délelőtt
Hétköznap délután
Hétköznap este
Hétvégén délelőtt
Hétvégén délután
Hétvégén este
Kérés elküldése
100 m2
Cirkó
2

Erdő közeli lakás!

Erdő közeli lakás!

Nyíregyházán saját kertrésszel rendelkező n+2 szobás lakás eladó!

 

Miért ajánlom?

Családi házas övezetben, karnyújtásnyira az erdőtől található, itt nagyon ritkán van eladó ingatlan, mert nagyon szeretnek itt élni az emberek.

Első emeleti társasházi lakás egy 4 lakásos zártudvaros társasházban!

Saját garázs, 100 m2 körüli kis kert nyújtja azt az érzést, minta egy családi házban laknál.

A dolgaid eltárolására pince és saját tároló is rendelkezésre áll.

 

Az ingatlan jellemzői:

tégla falazatú, 1. emeleti lakás

59 m2+ tetőtér beépítés 30 m2

nappali+2 szobás+gardróbszoba

fűtése gázkazán, radiátor és padlófűtés

műanyag nyílászárók

2 fürdő, 2 WC

 

Hívj, ha egy kis kertes otthonban képzeled el az új életed!

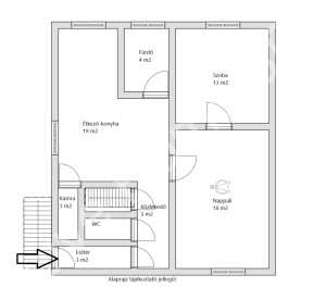
Helyiség Méret (m2)
Nappali 19
Szoba 13
Konyha + étkező 19
Fürdőszoba 4
WC 1
Kamra, Éléskamra, Spájz 2
Közlekedő 3
Gardrób 4
Szoba 13
Fürdőszoba + WC 3

Kérdése van?
Adja meg adatait és felhívjuk!

Az Adatkezelési tájékoztatót elolvastam és elfogadom.
Üzenet küldése