Eladó Téglalakás, Nyíregyháza

#687701313

Eladó Téglalakás

43.9 millió Ft

Nyíregyháza Hímes
Alapterület:
63 m2
Szobák száma:
3
Állapot:
Felújítandó
Építési mód:
Tégla

Kérjen személyes bemutatást!
Adja meg adatait, és hogy mikor érne rá!

Az Adatkezelési tájékoztatót elolvastam és elfogadom.

Megfelelő időpontok

Hétköznap délelőtt
Hétköznap délután
Hétköznap este
Hétvégén délelőtt
Hétvégén délután
Hétvégén este
Kérés elküldése
1. Emelet
35 m2
Konvektor

Lakás+garász+kert-csak a tiéd!

 Lakás+garász+kert-csak a tiéd!

Nyíregyházán a Városmajor utcán 3 szobás, tégla lakás eladó!

 

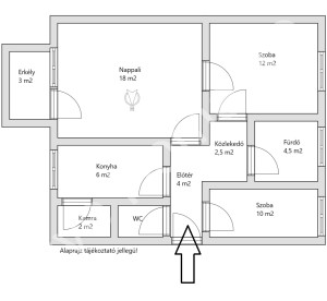
63 m², nappali + 2 szoba — ideális elrendezés

1.emeleti elhelyezkedés

fűtése konvektor

műanyag és fa nyílászárók redőnnyel szerelve

erkélyes

18 m² saját garázs

35 m² privát kert

 

Csendes, kedvelt utca, ugyanakkor jó közlekedés és szolgáltatások

Kertben pihenés, garázsban autóvédelem

 

Könnyebb, mint gondolná - hívjon, hogy megtudja, hogyan válhat az ingatlan tulajdonosává!

Helyiség Méret (m2)
Nappali 18
Szoba 12
Szoba 10
Konyha 6
Kamra, Éléskamra, Spájz 2
Fürdőszoba 4.5
WC 1
Közlekedő 2.5
Előtér 4
Erkély 3

Kérdése van?
Adja meg adatait és felhívjuk!

Az Adatkezelési tájékoztatót elolvastam és elfogadom.
Üzenet küldése