Eladó Téglalakás, Nyíregyháza

#687701345

Eladó Téglalakás

73.5 millió Ft

Nyíregyháza Belváros
Alapterület:
78 m2
Szobák száma:
4
Állapot:
Újszerű
Építési mód:
Tégla

Kérjen személyes bemutatást!
Adja meg adatait, és hogy mikor érne rá!

Az Adatkezelési tájékoztatót elolvastam és elfogadom.

Megfelelő időpontok

Hétköznap délelőtt
Hétköznap délután
Hétköznap este
Hétvégén délelőtt
Hétvégén délután
Hétvégén este
Kérés elküldése
1. Emelet
Kiváló
Cirkó
Bevezetve (230 Volt)
Van, saját vízórával
Vezetékes gáz
Közműhálózatba bekötve

Ritkaság az ingatlanpiacon!

Ritkaság az ingatlanpiacon!

A népszerű Hatzel tér közelében kínálunk eladásra egy kivételes állapotú, SOHA NEM LAKOTT lakást!

 

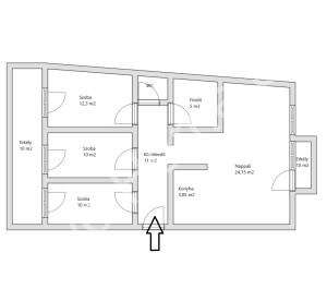
 A 2008-ban épült, szigetelt társasház első emeletén található ingatlan eredeti, érintetlen minőségben várja első lakóit. A 78 m²-es lakótér nappali + 3 külön nyíló szobával kényelmes elrendezést biztosít, míg az lakáshoz tartozó két erkély összesen 12 m²-rel bővíti az életteret – így a teljes használható terület 90,25 m².

 

A tágas világos terek, a kifogástalan állapotú beépített bútorok és gépek, valamint a csendes, belső udvarra néző szobák teszik egyedivé a lakást. A két erkély különleges értéket képvisel: minden szobából elérhető.

Az ingatlan gáz-cirkó fűtésű, alacsony rezsijű, és klimatizált.

Igény szerint a lakás alatt vásárolható egy 20 m2-es garázs, további 13 Mft -ért.(nem kötelező)

 

Hívjon elsőként!...a többi érdeklődőt megelőzve!

..mert ne gondolja, hogy csak az Ön figyelmét keltette fel!

 

Helyiség Méret (m2)
Előszoba 11
Szoba 10
Szoba 10
Szoba 12
Nappali 24.75
Konyha 3.82
Fürdőszoba 5
WC 1
Erkély 10
Erkély 2

Kérdése van?
Adja meg adatait és felhívjuk!

Az Adatkezelési tájékoztatót elolvastam és elfogadom.
Üzenet küldése